Каталог товаров

Вентилятор радиальный тягодутьевый ТДРВ-90-60

Вентиляторы ТДРВ предназначены для перемещения чистого воздуха в технологических установках различных отраслей народного хозяйства
СДЕЛАНО В РОВЕН
Описание товара
Характеристики моделей
Купить
Руководства

Описание 

  • Тягодутьевые радиальные вентиляторы среднего и высокого давления
  • Предназначены для:
- перемещения чистого воздуха в технологических установках различных отраслей;
- для использования в качестве дымососов на газомазутных котлах с уравновешенной тягой 

Конструктив 

  • Корпус в виде улитки
  • Конструктивные исполнения по ГОСТ 5976: 1, 3, 5
  • Левое (Л) или правое (Пр) направление вращения рабочего колеса/положение корпуса
  • Угол поворота корпуса вентилятора: 0°, 45°, 90°, 135°, 270°, 315°
  • Рабочее колесо с загнутыми вперед лопатками
  • Материалы корпуса и рабочего колеса зависят от исполнения 

Двигатель 

  • Трехфазный асинхронный электродвигатель
  • Степень защиты электродвигателя не ниже IP 54 

Условия эксплуатации 

  • Климатическое исполнение по ГОСТ 15150-69: У2 (для эксплуатации под навесом). Допускается эксплуатация в У1 (на открытом воздухе) при комплектации кожухом электродвигателя или двигателем У1
  • Температура окружающей среды от -45°С до +40°С 

Таблица исполнений

Исполнение

Температура перемещаемой среды, °С

Материал

Назначение

Маркировка взрывозащиты*

Группы взрывоопасной среды

Классы взрывоопасных зон помещения

Общепромышленное

О

от -45 до +80

Оцинкованная/ Углеродистая сталь

Для перемещения воздуха и других газопаровоздушных смесей

-

-

-

Теплостойкое

Т200

от -45 до +200

Оцинкованная/ Углеродистая сталь

Для перемещения воздуха и других газопаровоздушных смесей,с максимальной температурой до +200 °С

-

-

-

Коррозионностойкое теплостойкое

К1Т200

от -45 до +200

Нержавеющая сталь

Для перемещения агрессивных невзрывоопасных воздушных смесей

-

-

-

Коррозионностойкое

К1

от -45 до +80

-

-

-

Взрывозащищенное

Ex1

от -45 до +80

Углеродистая/ оцинкованная сталь, латунь

Для применения в потенциально взрывоопасной газовой среде категорий IIА, IIВ, IIС (кроме взрывоопасных смесей с воздухом: коксового газа категории IIВ группы Т1; окиси пропилена, окиси этилена, формальдегида, этилтрихлорэтилена, этилена категории IIВ группы Т2; винилтрихлорсилена, этилхлорсилена категории IIB группы Т3)

1Ех h IIС Т4 Gb Х

1Ех h IIВ Т4 Gb Х

Т4

1 и 2

Взрывозащищенное теплостойкое

Ex1Т200

от -45 до +200

Углеродистая/ оцинкованная сталь, латунь

1Ех h IIС Т2 Gb Х

1Ех h IIВ Т2 Gb Х

Т2

1 и 2

Взрывозащищенное коррозионностойкое

ExК1

от -45 до +80

Нержавеющая сталь/ латунь

1Ех h IIС Т4 Gb Х

1Ех h IIВ Т4 Gb Х

Т4

1 и 2

Взрывозащищенное коррозионностойкое теплостойкое

ExК1Т200

от -45 до +200

Нержавеющая сталь/ латунь

1Ех h IIС Т2 Gb Х

1Ех h IIВ Т2 Gb Х

Т2

1 и 2

* Подгруппа газа IIC или IIB зависит от подгруппы газа применяемого комплектующего оборудования (электродвигателя).
Перемещаемая среда не должна содержать:
- липких веществ, волокнистых материалов, пыли и других твердых примесей в концентрации более 600 г/м3;
- взрывоопасных веществ под избыточным давлением или нагревающихся выше температуры их самовоспламенения;
- пары и газы, вызывающие ускоренную коррозию материалов и покрытий указанных исполнений.
Для изделий из нержавеющей стали (К1) не допускается контакт с сильными восстановителями (щелочи), сильными окислителями (кислоты) и морской водой.
** Вентиляторы конструктивного исполнения 5 не изготавливаются в исполнении Ex (Ex1, ExК1, Ex1Т200, ExК1Т200).

Дополнительная комплектация

ТДРВ 90-60_доп для монтажа.jpg

1 - Вставка гибкая прямоугольная ВГП-ТДРВ 90-60
2 - Вставка гибкая круглая ВГК-ТДРВ 90-60
3 - Кожух ЭД-ТДРВ 90-60
4 - Виброизоляторы

* Дополнительные комплектующие в комплект поставки не входят.

Полная информация о вентиляторах ТДРВ 90-60 в электронном pdf-каталоге по ссылке во вкладке "Характеристики".

Файлы
Вентиляторы тягодутьевые радиальные ТДРВ 90-60.pdf

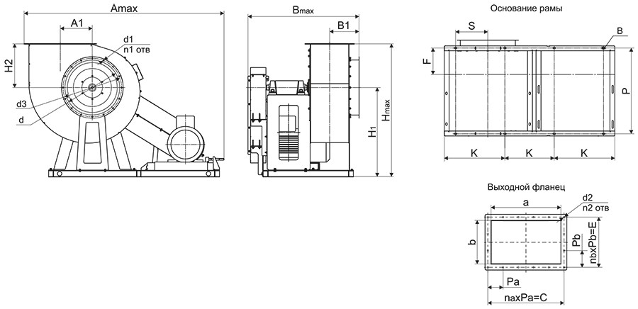
Габаритные и присоединительные размеры ТДРВ 90-60 без ОНА (мм). Исполнение 1

ТДРВ 90-60 чертеж исп 1.jpg

№ вент

a

b

C

E

Pa

Pb

na

nb

n2

d2

d

d3

d1

n1

H1

H2

H max

B max

B1

A

A1

F

K

N

n3

P

L

M

2,24

224

139

270

180

-

-

-

-

8

7

213

225

7

8

310

190

500

480

164

495

145

75

168

335

6

258

40

8

2,5

250

155

290

190

145

95

2

2

8

10

224

253

7

8

336

205

541

500

172

520

132

64

166

332

6

292

20

10

2,8

280

174

324

216

108

108

3

2

10

10

250

289

10

8

366

208

574

539

181

565

146

59

183

366

6

330

30

10

3,15

315

195

360

230

120

115

3

2

10

10

280

309

10

8

422

250

672

586

192

635

164

94

215

430

6

364

20

10

3,55

355

220

405

260

135

130

3

2

10

10

315

349

10

8

472

275

747

605

204

710

185

126

234

468

6

416

20

10

4,0

400

248

440

285

110

95

4

3

14

10

355

384

11

8

518

297

815

735

218

754

208

99

280

560

6

472

24

12

4,5

450

285

520

345

130

115

4

3

14

12

400

434

11

8

570

327

897

840

234

895

225

154

340

680

6

538

24

12

5,0

500

310

575

375

115

125

5

3

16

12

450

479

12

8

622

370

992

875

250

980

264

156

358

716

6

594

24

12

5,6

560

347

625

405

125

135

5

3

16

12

500

534

12

16

682

405

1087

815

269

1085

292

176

323

646

6

670

24

12

6,3

627

385

660

424

165

128

5

4

20

12

560

589

12

16

754

455

1209

920

291

1215

328

196

367

733

6

758

24

12

7,1

710

440

780

504

130

126

6

4

20

12

630

665

12

16

886

505

1391

1080

346

1365

369

218

428

856

6

840

28

14

8,0

800

496

875

560

125

140

7

4

22

12

710

739

11

16

979

570

1549

1231

404

1459

400

209

500

1000

6

966

28

14

9,0

900

558

976

625

122

125

8

5

26

12

800

829

12

16

1080

630

1710

1425

435

1700

475

278

598

1196

6

1068

28

14

10,0

1000

620

1080

690

135

138

8

5

26

14

900

938

15

16

1182

695

1877

1515

466

1885

503

278

622

1244

6

1190

36

18

11,2

1120

694

1206

768

134

128

9

6

30

14

1000

1030

15

16

1304

770

2074

1560

505

2095

585

345

663

1325

6

1248

36

18

Габаритные и присоединительные размеры ТДРВ 90-60 без ОНА (мм). Исполнение 3

ТДРВ 90-60 чертеж исп 4.jpg

№ вент

a

b

C

E

Pa

Pb

na

nb

n2

d2

d

d3

d1

n1

H1

H2

H max

B max

B1

A

A1

F

K

n3

P

L

M

5,6

560

347

625

405

125

135

5

3

16

12

500

534

12

16

682

405

1087

1340

269

1085

292

176

394

8

670

24

12

6,3

630

391

708

452

118

115

6

4

20

12

560

589

12

16

754

455

1209

1490

291

1215

329

196

434

8

758

24

12

7,1

710

440

780

504

130

126

6

4

20

12

630

665

12

16

886

505

1391

1785

346

1365

370

218

506

8

840

28

14

8,0

800

496

875

560

125

140

7

4

22

12

710

739

12

16

978

565

1543

1985

404

1525

417

218

565

8

966

28

14

9,0

900

558

976

625

122

125

8

5

26

12

800

829

15

16

1080

630

1710

2160

435

1700

469

278

630

8

1068

28

14

10,0

1000

620

1080

690

135

138

8

5

26

14

900

938

15

16

1182

695

1877

2275

466

1885

521

278

656

8

1190

36

18

11,2

1120

694

1206

768

134

128

9

6

30

14

1000

1030

15

16

1304

770

2074

2490

505

2095

584

345

730

8

1248

36

18

Габаритные и присоединительные размеры ТДРВ 90-60 без ОНА (мм). Исполнение 5

ТДРВ 90-60_исп 5 размеры.jpg

№ вент

a

b

C

E

Pa

Pb

na

nb

d

d1

n1

d2

n2

d3

n3

H1

H2

H max

B max

B1

A max

A1

F

K

P

S

5,6

560

347

615

405

125

135

5

3

500

12

8

12

16

534

8

815

405

1220

1015

269

1853

292

242

450

782

295

6,3

627

385

660

424

165

128

5

4

560

12

16

12

20

589

8

916

455

1371

1100

291

2082

328

262

505

830

332

7,1

710

440

780

504

130

126

6

4

630

12

16

12

20

665

8

1035

505

1540

1473

346

2343

369

284

570

994

375

8,0

800

496

875

560

125

140

7

4

710

12

16

12

22

739

8

1158

565

1723

1720

404

2598

409

284

640

1050

417

9,0

900

558

976

625

122

125

8

5

800

12

16

12

26

829

8

1292

630

1922

1853

435

3019

475

344

750

1263

487

10,0

1000

620

1080

690

135

138

8

5

900

15

16

14

26

938

10

1453

695

2148

2180

466

3198

503

344

790

1476

517

11,2

1120

694

1206

768

134

128

9

6

1000

15

16

14

30

1030

10

1610

770

2380

2363

505

3723

585

411

900

1731

605

Технические характеристики ТДРВ 90-60. Исполнение 1

Наименование

Габарит

электродвигателей

АИР/АИМЛ**

N, кВт

n, об/мин

Ток, А

Масса, кг

двигателя

колеса

ТДРВ 90-60-2,24-Х*-1-0,12/1500/220-380

56

0,12

1500

0,44

24

ТДРВ 90-60-2,24-Х*-1-0,25/3000/220-380

56

0,25

3000

0,69

24

ТДРВ 90-60-2,24-Х*-1-0,37/3000/220-380

63

0,37

1,01

25

ТДРВ 90-60-2,5-Х*-1-0,12/1500/220-380

56

0,12

1500

0,44

28

ТДРВ 90-60-2,5-Х*-1-0,37/3000/220-380

63

0,37

3000

1,01

29

ТДРВ 90-60-2,5-Х*-1-0,55/3000/220-380

63

0,55

1,38

29

ТДРВ 90-60-2,8-Х*-1-0,12/1500/220-380

56

0,12

1500

0,44

34

ТДРВ 90-60-2,8-Х*-1-0,55/3000/220-380

63

0,55

3000

1,38

35

ТДРВ 90-60-2,8-Х*-1-0,75/3000/220-380

71

0,75

1,83

45

ТДРВ 90-60-3,15-Х*-1-0,25/1500/220-380

63

0,25

1500

0,79

43

ТДРВ 90-60-3,15-Х*-1-1,5/3000/220-380

80

1,5

3000

3,46

55

ТДРВ 90-60-3,15-Х*-1-2,2/3000/220-380

80

2,2

4,85

56

ТДРВ 90-60-3,55-Х*-1-0,25/1500/220-380

63

0,25

1500

0,79

53

ТДРВ 90-60-3,55-Х*-1-1,5/3000/220-380

80

1,5

3000

3,46

65

ТДРВ 90-60-3,55-Х*-1-2,2/3000/220-380

80

2,2

4,85

66

ТДРВ 90-60-4,0-Х*-1-0,37/1500/220-380

63

0,37

1500

1,12

65

ТДРВ 90-60-4,0-Х*-1-0,55/1500/220-380

71

0,55

1,57

74

ТДРВ 90-60-4,0-Х*-1-2,2/3000/220-380

80

2,2

3000

4,85

78

ТДРВ 90-60-4,0-Х*-1-3,0/3000/220-380

90

3,0

6,34

86

ТДРВ 90-60-4,0-Х*-1-4,0/3000/220-380

100

4,0

8,2

91

ТДРВ 90-60-4,5-Х*-1-1,1/1500/220-380

80

1,1

1500

2,85

91

ТДРВ 90-60-4,5-Х*-1-1,5/1500/220-380

80

1,5

3,72

94

ТДРВ 90-60-4,5-Х*-1-7,5/3000/220-380

112

7,5

3000

14,9

126

ТДРВ 90-60-4,5-Х*-1-11,0/3000/380-660

132

11,0

21,2

149

ТДРВ 90-60-5,0-Х*-1-1,1/1500/220-380

80

1,1

1500

2,85

108

ТДРВ 90-60-5,0-Х*-1-1,5/1500/220-380

80

1,5

3,72

111

ТДРВ 90-60-5,0-Х*-1-7,5/3000/220-380

112

7,5

3000

14,9

143

ТДРВ 90-60-5,0-Х*-1-11,0/3000/380-660

132

11,0

21,2

166

ТДРВ 90-60-5,6-Х*-1-2,2/1500/220-380

90

2,2

1500

5,1

142

ТДРВ 90-60-5,6-Х*-1-3,0/1500/220-380

100

3,0

6,8

149

ТДРВ 90-60-6,3-Х*-1-1,5/1000/220-380

90

1,5

1000

4

173

ТДРВ 90-60-6,3-Х*-1-2,2/1000/220-380

100

2,2

5,6

182

ТДРВ 90-60-6,3-Х*-1-4,0/1500/220-380

100

4,0

1500

8,8

184

ТДРВ 90-60-6,3-Х*-1-5,5/1500/220-380

112

5,5

11,7

194

ТДРВ 90-60-7,1-Х*-1-3,0/1000/220-380

112

3,0

1000

7,4

232

ТДРВ 90-60-7,1-Х*-1-4,0/1000/220-380

112

4,0

9,75

236

ТДРВ 90-60-7,1-Х*-1-7,5/1500/380-660

132

7,5

1500

15,6

261

ТДРВ 90-60-7,1-Х*-1-11,0/1500/380-660

132

11,0

22,5

273

ТДРВ 90-60-8,0-Х*-1-4,0/1000/220-380

112М

4,0

1000

9,75

287

ТДРВ 90-60-8,0-Х*-1-5,5/1000/380-660

132

5,5

12,9

307

ТДРВ 90-60-8,0-Х*-1-15,0/1500/380-660

160

15,0

1500

30

363

ТДРВ 90-60-8,0-Х*-1-18,5/1500/380-660

160

18,5

36,3

383

ТДРВ 90-60-9,0-Х*-1-7,5/1000/380-660

132

7,5

1000

17,2

386

ТДРВ 90-60-9,0-Х*-1-11,0/1000/380-660

160

11,0

24,5

422

ТДРВ 90-60-9,0-Х*-1-30,0/1500/380-660

180

30,0

1500

57,6

494

ТДРВ 90-60-9,0-Х*-1-37,0/1500/380-660

200

37,0

70,2

564

ТДРВ 90-60-10,0-Х*-1-5,5/750/380-660

132

5,5

750

13,6

452

ТДРВ 90-60-10,0-Х*-1-7,5/750/380-660

160

7,5

17,8

491

ТДРВ 90-60-10,0-Х*-1-15,0/1000/380-660

160

15,0

1000

31,6

522

ТДРВ 90-60-10,0-Х*-1-18,5/1000/380-660

180

18,5

38,6

546

ТДРВ 90-60-10,0-Х*-1-45,0/1500/380-660

200

45,0

1500

84,9

662

ТДРВ 90-60-10,0-Х*-1-55,0/1500/380-660

225

55,0

103

712

ТДРВ 90-60-11,2-Х*-1-11,0/750/380-660

160

11,0

750

25,5

616

ТДРВ 90-60-11,2-Х*-1-15,0/750/380-660

180

15,0

34,1

646

ТДРВ 90-60-11,2-Х*-1-22,0/1000/380-660

200

22,0

1000

44,7

688

ТДРВ 90-60-11,2-Х*-1-30,0/1000/380-660

200

30,0

59,3

730

* В этом месте необходимо указать исполнение вентилятора: О, Т200, К1, К1Т200, Ex1, ExК1, Ex1Т200, ExК1Т200.
** АИМЛ для вентиляторов во взрывозащищенном исполнении (Ex1, ExК1, Ex1Т200, ExК1Т200).
Вентиляторы исполнений Ex1, ExК1, Ex1Т200, ExК1Т200 с двигателем АИМЛ56 (0,12/1500) не изготавливаются.

Технические характеристики ТДРВ 90-60. Исполнение 3

Наименование

Габарит

электродвигателей

АИР/АИМЛ**

N, кВт

n, об/мин

Ток, А

Масса, кг

двигателя

колеса

ТДРВ 90-60-5,6-Х*-3-2,2/1500/220-380

90

2,2

1500

5,1

207

ТДРВ 90-60-5,6-Х*-3-3,0/1500/220-380

100

3,0

6,8

214

ТДРВ 90-60-6,3-Х*-1-1,5/1000/220-380

90

1,5

1000

4

249

ТДРВ 90-60-6,3-Х*-1-2,2/1000/220-380

100

2,2

5,6

257

ТДРВ 90-60-6,3-Х*-1-4,0/1500/220-380

100

4,0

1500

8,8

260

ТДРВ 90-60-6,3-Х*-1-5,5/1500/220-380

112

5,5

11,7

269

ТДРВ 90-60-7,1-Х*-1-3,0/1000/220-380

112

3,0

1000

7,4

346

ТДРВ 90-60-7,1-Х*-1-4,0/1000/220-380

112

4,0

9,75

351

ТДРВ 90-60-7,1-Х*-1-7,5/1500/380-660

132

7,5

1500

15,6

376

ТДРВ 90-60-7,1-Х*-1-11,0/1500/380-660

132

11,0

22,5

388

ТДРВ 90-60-8,0-Х*-1-4,0/1000/220-380

112М

4,0

1000

9,75

418

ТДРВ 90-60-8,0-Х*-1-5,5/1000/380-660

132

5,5

12,9

438

ТДРВ 90-60-8,0-Х*-1-15,0/1500/380-660

160

15,0

1500

30

494

ТДРВ 90-60-8,0-Х*-1-18,5/1500/380-660

160

18,5

36,3

514

ТДРВ 90-60-9,0-Х*-1-7,5/1000/380-660

132

7,5

1000

17,2

538

ТДРВ 90-60-9,0-Х*-1-11,0/1000/380-660

160

11,0

24,5

574

ТДРВ 90-60-9,0-Х*-1-30,0/1500/380-660

180

30,0

1500

57,6

646

ТДРВ 90-60-9,0-Х*-1-37,0/1500/380-660

200

37,0

70,2

716

ТДРВ 90-60-10,0-Х*-1-5,5/750/380-660

132

5,5

750

13,6

627

ТДРВ 90-60-10,0-Х*-1-7,5/750/380-660

160

7,5

17,8

666

ТДРВ 90-60-10,0-Х*-1-15,0/1000/380-660

160

15,0

1000

31,6

697

ТДРВ 90-60-10,0-Х*-1-18,5/1000/380-660

180

18,5

38,6

721

ТДРВ 90-60-10,0-Х*-1-45,0/1500/380-660

200

45,0

1500

84,9

837

ТДРВ 90-60-10,0-Х*-1-55,0/1500/380-660

225

55,0

103

887

ТДРВ 90-60-11,2-Х*-1-11,0/750/380-660

160

11,0

750

25,5

884

ТДРВ 90-60-11,2-Х*-1-15,0/750/380-660

180

15,0

34,1

914

ТДРВ 90-60-11,2-Х*-1-22,0/1000/380-660

200

22,0

1000

44,7

956

ТДРВ 90-60-11,2-Х*-1-30,0/1000/380-660

200

30,0

59,3

998

* В этом месте необходимо указать исполнение вентилятора: О, Т200, К1, К1Т200, Ex1, ExК1, Ex1Т200, ExК1Т200.
** АИМЛ для вентиляторов во взрывозащищенном исполнении (Ex1, ExК1, Ex1Т200, ExК1Т200). 

Технические характеристики ТДРВ 90-60. Исполнение 5

Наименование

Габарит

электродвигателей

АИР/АИМЛ**

N, кВт

n, об/мин

Ток, А

двигателя

колеса

ТДРВ 90-60-5,6-Х*-5(1667)-2,2/3000/220-380

80

2,2

3000

1667

4,85

ТДРВ 90-60-5,6-Х*-5(1667)-3,0/3000/220-380

90

3,0

6,34

ТДРВ 90-60-5,6-Х*-5(1667)-4,0/3000/220-380

100

4,0

8,2

ТДРВ 90-60-5,6-Х*-5(1875)-3,0/3000/220-380

90

3,0

3000

1875

6,34

ТДРВ 90-60-5,6-Х*-5(1875)-4,0/3000/220-380

100

4,0

8,2

ТДРВ 90-60-5,6-Х*-5(1875)-5,5/3000/220-380

100

5,5

11,1

ТДРВ 90-60-5,6-Х*-5(2143)-5,5/3000/220-380

100

5,5

3000

2143

11,1

ТДРВ 90-60-5,6-Х*-5(2143)-7,5/3000/220-380

112

7,5

14,9

ТДРВ 90-60-5,6-Х*-5(2400)-7,5/3000/220-380

112

7,5

3000

2400

14,9

ТДРВ 90-60-5,6-Х*-5(2400)-11,0/3000/380-660

132

11,0

21,2

ТДРВ 90-60-5,6-Х*-5(2679)-7,5/3000/220-380

112

7,5

3000

2679

14,9

ТДРВ 90-60-5,6-Х*-5(2679)-11,0/3000/380-660

132

11,0

21,2

ТДРВ 90-60-5,6-Х*-5(2679)-15,0/3000/380-660

160

15,0

28,6

ТДРВ 90-60-6,3-Х*-5(1000)-1,5/1000/220-380

90

1,5

1000

4

ТДРВ 90-60-6,3-Х*-5(1000)-2,2/1000/220-380

100

2,2

5,6

ТДРВ 90-60-6,3-Х*-5(1071)-1,5/1500/220-380

80

1,5

1500

1071

3,72

ТДРВ 90-60-6,3-Х*-5(1071)-2,2/1500/220-380

90

2,2

5,1

ТДРВ 90-60-6,3-Х*-5(1200)-2,2/1500/220-380

90

2,2

1500

1200

5,1

ТДРВ 90-60-6,3-Х*-5(1200)-3,0/1500/220-380

100

3,0

6,8

ТДРВ 90-60-6,3-Х*-5(1339)-3,0/1500/220-380

100

3,0

1500

1339

6,8

ТДРВ 90-60-6,3-Х*-5(1339)-4,0/1500/220-380

100

4,0

8,8

ТДРВ 90-60-6,3-Х*-5(1500)-4,0/1500/220-380

100

4,0

1500

8,8

ТДРВ 90-60-6,3-Х*-5(1500)-5,5/1500/220-380

112

5,5

11,7

ТДРВ 90-60-6,3-Х*-5(1667)-5,5/3000/220-380

100

5,5

3000

1667

11,1

ТДРВ 90-60-6,3-Х*-5(1667)-7,5/3000/220-380

112

7,5

14,9

ТДРВ 90-60-6,3-Х*-5(1875)-7,5/3000/220-380

112

7,5

3000

1875

14,9

ТДРВ 90-60-6,3-Х*-5(1875)-11,0/3000/380-660

132

11,0

21,2

ТДРВ 90-60-6,3-Х*-5(2143)-11,0/3000/380-660

132

11,0

3000

2143

21,2

ТДРВ 90-60-6,3-Х*-5(2143)-15,0/3000/380-660

160

15,0

28,6

ТДРВ 90-60-6,3-Х*-5(2400)-15,0/3000/380-660

160

15,0

3000

2400

28,6

ТДРВ 90-60-6,3-Х*-5(2400)-18,5/3000/380-660

160

18,5

34,7

ТДРВ 90-60-6,3-Х*-5(2400)-22,0/3000/380-660

180

22,0

41

ТДРВ 90-60-7,1-Х*-5(1000)-3,0/1000/220-380

112

3,0

1000

7,4

ТДРВ 90-60-7,1-Х*-5(1000)-4,0/1000/220-380

112

4,0

9,75

ТДРВ 90-60-7,1-Х*-5(1071)-3,0/1500/220-380

100

3,0

1500

1071

6,8

ТДРВ 90-60-7,1-Х*-5(1071)-4,0/1500/220-380

100

4,0

8,8

ТДРВ 90-60-7,1-Х*-5(1200)-4,0/1500/220-380

100

4,0

1500

1200

8,8

ТДРВ 90-60-7,1-Х*-5(1200)-5,5/1500/220-380

112

5,5

11,7

ТДРВ 90-60-7,1-Х*-5(1339)-5,5/1500/220-380

112

5,5

1500

1339

11,7

ТДРВ 90-60-7,1-Х*-5(1339)-7,5/1500/380-660

132

7,5

15,6

ТДРВ 90-60-7,1-Х*-5(1500)-7,5/1500/380-660

132

7,5

1500

15,6

ТДРВ 90-60-7,1-Х*-5(1500)-11,0/1500/380-660

132

11,0

22,5

ТДРВ 90-60-7,1-Х*-5(1667)-11,0/3000/380-660

132

11,0

3000

1667

22,5

ТДРВ 90-60-7,1-Х*-5(1667)-15,0/3000/380-660

160

15,0

30

ТДРВ 90-60-7,1-Х*-5(1875)-15,0/3000/380-660

160

15,0

3000

1875

30

ТДРВ 90-60-7,1-Х*-5(1875)-18,5/3000/380-660

160

18,5

36,3

ТДРВ 90-60-7,1-Х*-5(2143)-22,0/3000/380-660

180

22,0

3000

2143

43,2

ТДРВ 90-60-7,1-Х*-5(2143)-30,0/3000/380-660

180

30,0

57,6

ТДРВ 90-60-8,0-Х*-5(1000)-4,0/1000/220-380

112

4,0

1000

9,75

ТДРВ 90-60-8,0-Х*-5(1000)-5,5/1000/380-660

132

5,5

12,9

ТДРВ 90-60-8,0-Х*-5(1071)-5,5/1500/220-380

112

5,5

1500

1071

11,7

ТДРВ 90-60-8,0-Х*-5(1071)-7,5/1500/380-660

132

7,5

15,6

ТДРВ 90-60-8,0-Х*-5(1200)-7,5/1500/380-660

132

7,5

1500

1200

15,6

ТДРВ 90-60-8,0-Х*-5(1200)-11,0/1500/380-660

132

11,0

22,5

ТДРВ 90-60-8,0-Х*-5(1339)-11,0/1500/380-660

132

11,0

1500

1339

22,5

ТДРВ 90-60-8,0-Х*-5(1339)-15,0/1500/380-660

160

15,0

30

ТДРВ 90-60-8,0-Х*-5(1500)-15,0/1500/380-660

160

15,0

1500

30

ТДРВ 90-60-8,0-Х*-5(1500)-18,5/1500/380-660

160

18,5

36,3

ТДРВ 90-60-8,0-Х*-5(1680)-18,5/1500/380-660

160

18,5

1500

1680

36,3

ТДРВ 90-60-8,0-Х*-5(1680)-22,0/1500/380-660

180

22,0

43,2

ТДРВ 90-60-8,0-Х*-5(1875)-30,0/1500/380-660

180

30,0

1500

1875

57,6

ТДРВ 90-60-8,0-Х*-5(1875)-37,0/1500/380-660

200

37,0

70,2

ТДРВ 90-60-9,0-Х*-5(1000)-7,5/1000/380-660

132

7,5

1000

17,2

ТДРВ 90-60-9,0-Х*-5(1000)-11,0/1000/380-660

160

11,0

24,5

ТДРВ 90-60-9,0-Х*-5(1071)-11,0/1500/380-660

132

11,0

1500

1071

22,5

ТДРВ 90-60-9,0-Х*-5(1071)-15,0/1500/380-660

160

15,0

30

ТДРВ 90-60-9,0-Х*-5(1200)-15,0/1500/380-660

160

15,0

1500

1200

30

ТДРВ 90-60-9,0-Х*-5(1200)-18,5/1500/380-660

160

18,5

36,3

ТДРВ 90-60-9,0-Х*-5(1339)-18,5/1500/380-660

160

18,5

1500

1339

36,3

ТДРВ 90-60-9,0-Х*-5(1339)-22,0/1500/380-660

180

22,0

43,2

ТДРВ 90-60-9,0-Х*-5(1500)-30,0/1500/380-660

180

30,0

1500

57,6

ТДРВ 90-60-9,0-Х*-5(1500)-37,0/1500/380-660

200

37,0

70,2

ТДРВ 90-60-9,0-Х*-5(1680)-37,0/1500/380-660

200

37,0

1500

1680

70,2

ТДРВ 90-60-9,0-Х*-5(1680)-45,0/1500/380-660

200

45,0

84,9

ТДРВ 90-60-10,0-Х*-5(750)-5,5/750/380-660

132

5,5

750

13,6

ТДРВ 90-60-10,0-Х*-5(750)-7,5/750/380-660

160

7,5

17,8

ТДРВ 90-60-10,0-Х*-5(800)-7,5/1000/380-660

132

7,5

1000

800

17,2

ТДРВ 90-60-10,0-Х*-5(800)-11,0/1000/380-660

160

11,0

24,5

ТДРВ 90-60-10,0-Х*-5(893)-11,0/1000/380-660

160

11,0

1000

893

24,5

ТДРВ 90-60-10,0-Х*-5(893)-15,0/1000/380-660

160

15,0

31,6

ТДРВ 90-60-10,0-Х*-5(1000)-15,0/1000/380-660

160

15,0

1000

31,6

ТДРВ 90-60-10,0-Х*-5(1000)-18,5/1000/380-660

180

18,5

38,6

ТДРВ 90-60-10,0-Х*-5(1071)-18,5/1500/380-660

160

18,5

1500

1071

36,3

ТДРВ 90-60-10,0-Х*-5(1071)-22,0/1500/380-660

180

22,0

43,2

ТДРВ 90-60-10,0-Х*-5(1200)-22,0/1500/380-660

180

22,0

1500

1200

43,2

ТДРВ 90-60-10,0-Х*-5(1200)-30,0/1500/380-660

180

30,0

57,6

ТДРВ 90-60-10,0-Х*-5(1339)-30,0/1500/380-660

180

30,0

1500

1339

57,6

ТДРВ 90-60-10,0-Х*-5(1339)-37,0/1500/380-660

200

37,0

70,2

ТДРВ 90-60-10,0-Х*-5(1500)-45,0/1500/380-660

200

45,0

1500

84,9

ТДРВ 90-60-10,0-Х*-5(1500)-55,0/1500/380-660

225

55,0

103

ТДРВ 90-60-11,2-Х*-5(750)-11,0/750/380-660

160

11,0

750

25,5

ТДРВ 90-60-11,2-Х*-5(750)-15,0/750/380-660

180

15,0

34,1

ТДРВ 90-60-11,2-Х*-5(800)-11,0/1000/380-660

160

11,0

1000

800

24,5

ТДРВ 90-60-11,2-Х*-5(800)-15,0/1000/380-660

160

15,0

31,6

ТДРВ 90-60-11,2-Х*-5(800)-18,5/1000/380-660

180

18,5

38,6

ТДРВ 90-60-11,2-Х*-5(893)-15,0/1000/380-660

160

15,0

1000

893

31,6

ТДРВ 90-60-11,2-Х*-5(893)-18,5/1000/380-660

180

18,5

38,6

ТДРВ 90-60-11,2-Х*-5(893)-22,0/1000/380-660

200

22,0

44,7

ТДРВ 90-60-11,2-Х*-5(1000)-22,0/1000/380-660

200

22,0

1000

44,7

ТДРВ 90-60-11,2-Х*-5(1000)-30,0/1000/380-660

200

30,0

59,3

ТДРВ 90-60-11,2-Х*-5(1071)-30,0/1500/380-660

180

30,0

1500

1071

57,6

ТДРВ 90-60-11,2-Х*-5(1071)-37,0/1500/380-660

200

37,0

70,2

ТДРВ 90-60-11,2-Х*-5(1200)-37,0/1500/380-660

200

37,0

1500

1200

70,2

ТДРВ 90-60-11,2-Х*-5(1200)-45,0/1500/380-660

200

45,0

84,9

ТДРВ 90-60-11,2-Х*-5(1339)-55,0/1500/380-660

225

55,0

1500

1339

103

ТДРВ 90-60-11,2-Х*-5(1339)-75,0/1500/380-660

250

75,0

138,3

* В этом месте необходимо указать исполнение вентилятора: О, Т200, К1, К1Т200, Ex1, ExК1, Ex1Т200, ExК1Т200.
** АИМЛ для вентиляторов во взрывозащищенном исполнении (Ex1, ExК1, Ex1Т200, ExК1Т200).

ТДРВ 90-60_маркировка.jpg

Электрические схемы подключения вентиляторов в сеть 380 В

ВРН_спец_элсхемы.jpg

* В вентиляторах с номинальным напряжением ∆/Y 380В/660В предусмотрена возможность запуска пониженным напряжением по схеме Y-∆.
Рекомендуемая схема подключения зависит от исполнения двигателя. Для получения более подробной информации по подключению, обратитесь в отдел технической поддержки.

Не представленные в наличии модели доступны к поставке под заказ

Оповестить о поступлении

Спасибо за обращение!
Наш менеджер свяжется с вами.
Руководство по эксплуатации ТДРВ-90-60.pdf

Всю необходимую информацию также можно получить по телефону «горячей линии»

+ 7 800 200 93 96

или по телефону

+7 800 505 08 67 получить консультацию